Havířská 21, Jihlava
Bytový dům s 11 bytovými jednotkami ve 3 podlažích a půdní vestavbě u jihlavského historického náměstí

Památkově chráněný dům z doby kolem 14. století prošel několika novodobějšími přestavbami a po obydlení nepřizpůsobivými občany potřebuje zásadní rekonstrukci. V době by i s půdní vestavbou mělo vzniknout 11 menších bytových jednotek. S ohledem na polohu v centru města a velice dobrou dopravní dostupností MHD se bude jednat o zajímavou možnost bydlení pro studenty a mladší páry či rodiny.
K domu přiléhá i menší zahrádka, která je ohraničena historickými hradbami města. Dům není nijak honosně dekorován, je spíše v minimalistickém duchu, velice pěkným prvkem jsou klenuté stropy a prosvětlující průhledy mezi místnostmi a pokoji.
Dům potřebuje celkovou rekonstrukci, která je v současné době projednávána s památkovým úřadem.
Dokončení - červen 2020
Byt 6 - 2.NP
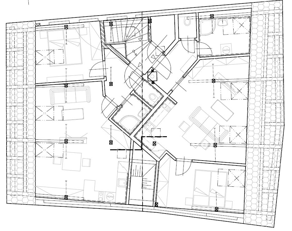
Byt 10 - půda
Dokončování - květen 2020
Průběh rekonstrukce
STAV LEDEN 2020
PRŮBĚH PRACÍ V ROCE 2019
Výměna shnilých stropních trámů ve dvou místnostech
Odhalení kleneb černých kuchyní
první foto původní stav s nízkými stropy, dále pak zakouřený klenutý strop po stržení sníženého stropu
Na 3. fotografii - menší černý komín ve 2.NP a na 5. fotografii - větší černý komín ve 3.NP.
